|
|
|
|
|
|
 |
|
| 0505-326 |
¹Ì¾²ºñ½Ã(MITSUBISHI)
|
MAF-RS150C(AQŸÀÔ)
Fanuc-15M
½ºÇɵéø150,
BT50,
3000rpm,
ÁÖÃà°üÅë,
À̵¿·® 900mm
°¢ÃàÀ̵¿·®(XYZW) 2100x2200x1100x900
(Àü·Â)160kW
°íÁ¤Å×À̺í3000x8000À»
z¹æÇâ 8000mm·Î ¼³Ä¡½Ã
(¼³Ä¡°ø°£) 6000 x 13700x 6300
¼öÀÔ º¸°üÁß
(º»Ã¼Áß·® 35Åæ)
ĨÄÁº£¾î´Â xÃà ¹æÇâ 1°³¸¸ ¼³Ä¡
Àý»èÀ¯ ÅÊÅ©ÀåÄ¡¿Í ¿ÀÀÏÅÊÅ©´Â PIT°ø»ç¸¦ ÇÏ¿© ¼³Ä¡Çϵµ·Ï µÇ¾îÀÖÀ¸³ª Áö»ó¿¡ °³Á¶¼³Ä¡ ¿¹Á¤
XÃà ¹æÇâ ÄÉÀÌºí º£¾î, ÄÉÀ̺í, È£½º ±æÀÌ Ãà¼ÒÇÏ¿© Á¶¸³
XÃà º¼ ½ºÅ©·ç¿ì Àý´Ü°¡°ø. º¼½ºÅ©·ç¿ì °íÁ¤À§Ä¡ Àç°¡°ø.
±âÁ¸ ·¹º§ºí·°º¸´Ù Æø ¹× ³ÐÀ̰¡ 2¹è ÀÌ»ó Å«°ÍÀ¸·Î ±³Ã¼¼³Ä¡
XÃà ½½¶óÀÌ´õ ½ºÆ¿Ä«¹Ù´Â ÁÖ¸§ÀÚ¹Ù¶ó·Î º¯°æÇÏ¿© ¼³Ä¡,
±âÃʰø»ç °ü·Ã º°µµ
|
1997³â |
\0 |
         |
|
| |
|
| |
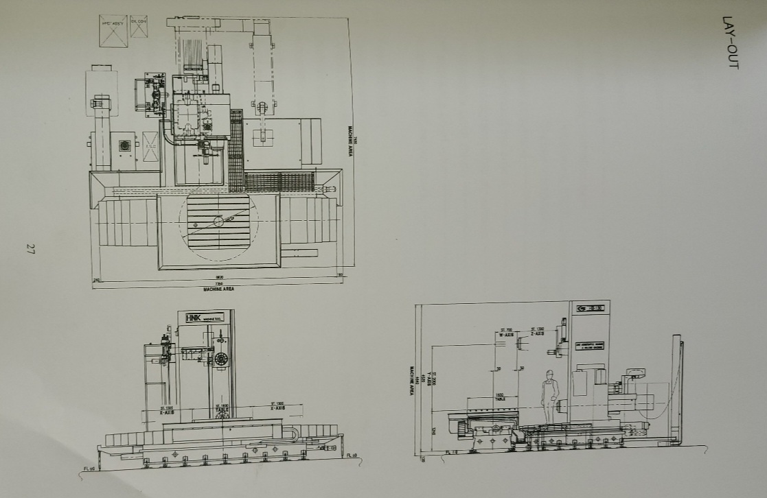
| 0504-781 |
HNK(Çѱ¹Á¤¹Ð)
|
HB130(¨ª130)
ȳ«18iMB(XYZWB)
·ÎÅ͸®Å×À̺í 1,600x1,800mm, 1/1000µµ, ÀûÀçÁß·® 12Åæ
XYZW 3,000x2,000x1,300x600mm
ÁÖÃàȸÀü¼ö 2,500rpm
ATC40
XYZÃà ½ºÄÉÀÏ
¼³Ä¡¸éÀû 7,350x7,450x4,640mm
±â°èÁß·® 46,500kg
Àü¿ø¿ë·® 74KVA
Á¤µµ ±â´É»óÅ ÃÖ»ó
ºÐÇØº¸°üÁß
Æ®·°»óÂ÷Á¶°Ç
CNC Table Boring Machine
HNK Machine Tools HB130, Year 2010
Fanuc-18iMB(XYZWB)
Rotary Table 1600x1800mm, 1/1000degree
XYZW 3000x2000x1300x600mm
Spindle speed 2500rpm
ATC40
XYZ axis scales
Machine area 7350x6450x4640mm
Machine weight 46,500kg
樨毢
youtu.be/dG9plQF4cnY
youtube.com/shorts/OIaSEG5VSLo
|
2010³â |
\0 |
    .jpg)  .jpg)      .jpg)     |
|
| |
|
| |
| 0505-302 |
¹Ì¾²ºñ½Ã(MITSUBISHI)
|
MAF-RS150C(AQŸÀÔ)
ȳ«15M
(½ºÇɵé)ø150,BT50, 3000rpm, ÁÖÃà°üÅë, À̵¿·® 900mm
(NC·ÎÅ͸®Å×ÀÌºí ¹Ì¾²ºñ½Ã DIT-AH )
Å×À̺í Å©±â 2000x3000mm
90µµ ÀÚµ¿ Àε¦½Ì ÀÓÀǰ¢µµ 0.001µµ À妽Ì
ȸÀü¹Ý°æ Ø3500, VÃà À̵¿°Å¸®1500mm
Ç¥ÁØÀûÀçÁß·®20Åæ
ÀÚüÁß·® 15Åæ
(ATC) 400°³(170+60+170) ¶Ç´Â 230°³¼±Åà ¼³Ä¡°¡´É
(90µµ¾Þ±ÛÇìµå)ÀÚµ¿Å»ºÎÂø, 2000rpm, 15µµ ÀÚµ¿ À妽Ì
°¢ÃàÀ̵¿·®(XYZWV) 5000(4200)x2200x1100x900
(Àü·Â)160kW
(¼³Ä¡°ø°£) 13050 x 11700 x 6300
(ÃÑÁß·®) 50Åæ(º»Ã¼ 35Åæ)
ÀϺ»¿¡¼ ¼öÀÔÇÏ¿© º¸°üÁß
|
1997³â |
\0 |
         .jpg)            |
|
| |
|
| |
| 0504-498 |
¸¶³¢³ë
|
MCD-2518
½Ã½ºÅÛ È³«S310is-A5(ȳ«-31iM)µ¿±Þ
ȳ«S310is-A5(ȳ«-31iM)µ¿±Þ
ÁÖÃà120ÆÄÀÌ º¸¸µ±íÀÌÀ̵¿300mm
TȨ ·ÎÅ͸®Å×À̺í 1800x1300,
BÃà 0.0001µµ,
ÀûÀçÁß·® 5.5Åæ
°¡°øÇ°È¸Àü¹Ý°æ Ø4000
°¢ÃàÀ̵¿°Å¸® XYZWB 2500/1800/1300/300
ÁÖÃà ±â¾î¹Ú½ºÅ¸ÀÔ(2´Ü) 30/22kw.4000rpm
BT50
ATC235
°¢Ãà ¸®´Ï¾î½ºÄÉÀÏ
Á¤µµ±â´ÉA±Þ
ÁÖÃà °üÅë ³Ã°¢¼ö °ø±ÞÀåÄ¡
ĨÄÁº£¾î
Áß·®35.5Åæ (º»Ã¼30Åæ)
¼³Ä¡°ø°£(X.Z):8000x8400mm
¼³Ä¡½Ã¿îÀü º¸°üÁß
½ÃȰø´Ü ÇöÀåÀεµÁ¶°Ç
Fanuc S310is-A5
Spindle Ø120mm
Rotary Table(T-slotted) 1,800x1,300mm
B axis 0.001degree
Work Weight 5.5tons
Work diameter Ø4,000mm
XYZW 2,500/1,800/1,300/300mm
Spindle speed 4,000rpm(Gearbox type)
Spindle Motor 30/22kW
BT50
ATC235
Linear scales
Thru coolant
Chip conveyor
Total Weight 35.5tons (Main body 30tons)
Machine size 8000×8400mm
Machine height 4,760mm
樨毢
youtube.com/shorts/k-nhtxN40wA
https://youtu.be/8DWcfKmfk30
|
2006³â |
\0 |
                            |
|
| |
|
| |
|
| |
|
| |
|
| |
| 0504-814 |
µµ½Ã¹Ù ½Ã¹Ù¿ì¶ó
|
BTD-11
Fanuc-0M
·ÎÅ͸®Å×À̺í 1400x1600
90µµ ÀÚµ¿À¯¾ÐÇɹæ½Ä(0.001µµ MPGÇÚµé ¼öµ¿)
°¡°øÁß·® 6.3Åæ
XYZW 1800x1500x1450x630mm
Áß·® 22Åæ
CNC Table Boring Machine
Toshiba Shibaura BTD-11, Year 1984
Fanuc-0M
Rotary Table 1400x1600mm
XYZW 1800x1500x1450x630mm
Indexing 90degree (0.001degree by MPG handle)
Work weight 6.3ton
樨毢
https://youtube.com/shorts/kl6fPXHIw4A
|
1984³â |
\26,000,000 |
       .jpg)       |
|
| |
|
| |
| 0504-812 |
³ë¹«¶ó(NOMURA)
|
BN-110WR(110ÆÄÀÌ)
Fanuc 0-MF(4Ãà(3Ãà µ¿½Ã))
Ø110
·ÎÅ͸®Å×À̺í 1400x1600mm, 90µµ Çɹæ½Ä(ÀÓÀÇÀÇ °¢µµ´Â À¯¾Ð½ÄŬ·¥ÇÁ)
°¡°øÁß·® 7,000kg
XYZW 2,000x1,525x2,000x1,400mm
5~2,500rpm
ÁÖÃà¸ðÅÍ AC 15 /18.5 kW
¼³Ä¡¸éÀû 6,150x4,970x(H)3,900mm
±â°èÁß·® 22,000kg
* ATC ¾ø´Â ŸÀÔ
|
1992³â |
\0 |
      |
|
| |
|
| |
| |
| |
|
|
| |
|
|
|
|